Baugebiete

Baugebiete Welschensteinach

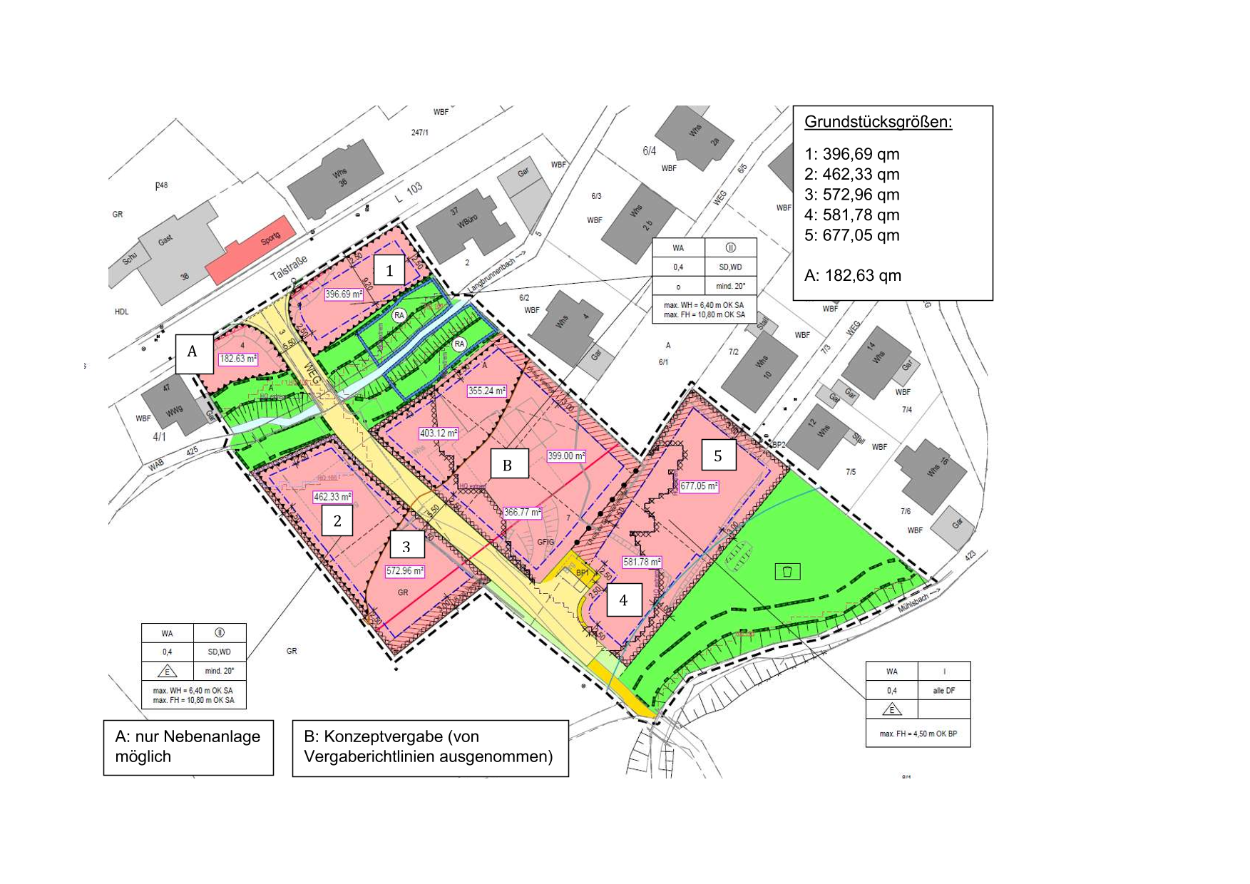
Verkauf von Baugrundstücken im Baugebiet „Talstraße“

Die Gemeinde Steinach veräußert im Baugebiet „Talstraße“ in Welschensteinach fünf Wohnbauplätze sowie ein Grundstück, das nur mit einer Nebenanlage bebaut werden kann.

Das Baugebiet mit Darstellung der einzelnen Bauplätze mit Grundstücksgrößen sind aus folgendem Planausschnitt ersichtlich:

Der Verkaufspreis beträgt 140,00 € je Quadratmeter zuzüglich Anlieger- und Erschließungsbeiträgen.

Die Vergabe des Bauplatzes erfolgt nach pflichtgemäßem Ermessen der Gemeinde anhand eines Punktesystems, den Vergabekriterien der Gemeinde Steinach.

Die Frist zur Einreichung einer Bewerbung endet am 22. März 2026.

Ansprechpartnerin für das Vergabeverfahren und bei Fragen zum Bebauungsplan ist Frau Sabine Obert-Kempf (Tel.: 07832/9198-21 bzw. obert-kempf@steinach.de) sowie für das Vergabeverfahren Frau Simone Muth (Tel.: 07832/9198-24 bzw. muth@steinach.de). Bei Fragen zum Kaufpreis und zu Anliegerbeiträgen wenden Sie sich bitte an Frau Petra Meister (Tel.: 07832/9198-23 bzw. meister@steinach.de).